E info@investeamberlin.com - P +49 30 40577087

SOLD: Investimento con stile! Appartamento d'epoca affittato con balcone nell'esclusivo quartiere delle ville!

12207 Berlin - Lichterfelde
Prezzo di acquisto
199.000 €
plus buyer's commission: 3.57 %
67,00 m² Superficie
3 Stanze
1 Bagni

Descrizione

L'appartamento è attualmente affittato in modo affidabile e viene venduto esclusivamente come investimento. La risoluzione per necessità personale è esclusa contrattualmente per i prossimi dieci anni - ideale per investitori orientati al lungo termine.

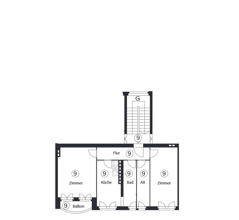
L'affascinante appartamento d'epoca si trova al 2° piano di una curata casa plurifamiliare e offre circa 2,5 stanze con un'offerta di spazio attraente. I soffitti alti conferiscono alle stanze una sensazione di spaziosità, mentre il balcone offre una splendida vista sul verde e sull'ambiente tranquillo - un vero rifugio di benessere nel cuore di Lichterfelde Sud.

Tutte le stanze sono praticamente disposte e comodamente accessibili dal corridoio, il che valorizza ulteriormente l'appartamento.

Posizione

La proprietà si trova in una tranquilla e benestante zona residenziale a Berlino-Lichterfelde Sud, proprio al confine con Teltow. Nelle vicinanze - in particolare intorno a Müllerstraße - si trovano varie possibilità di shopping per le necessità quotidiane. Il collegamento con i mezzi pubblici è eccellente: le stazioni ferroviarie S-Bahn di Lichterfelde Sud e Osdorfer Straße, così come diverse linee di autobus, sono facilmente raggiungibili a piedi e offrono un rapido collegamento con il centro di Berlino.

Numero oggetto interno 7209

Superfici

Superficie:
67,00 m²

Costi

Prezzo di acquisto:
199.000 €
Spese condominiali:
154 €
Oggetto a commissione:
Yes
Rendita da locazione (effettiva):
3.280,68 €
Commissione dell'acquirente:
3.57 %

Caratteristiche

Utilizzo del giardino:
Yes

Dettagli dell'immobile

Tipo di utilizzo:
Living
Tipo di immobile:
Apartment (floor)
Stanze:
3
Bagni:
1
Balconi:
1
Piano:
2 / 3
Anno di costruzione:
1909
Condizione:
Well maintained
Disponibile dal:
vermietet
Tipo di riscaldamento:
Floor heating
Riscaldamento:
Gas

Certificazione energetica

Classe energetica:
Energy usage certificate (consumption)
Valido fino a:
31.05.2028
Valore di consumo:
179 kWh/(m²*a)
Fonte di energia:
Gas
Anno di costruzione:
1909
Data di emissione:
2018-06-01
Tipo di edificio:
Residential building
Energy efficiency scale:
F
A+
A
B
C
D
E
F
G
H
ITTB Investeamberlin Immobilien GmbH Annika Bassi 030-40577087
Numero oggetto interno 7209