E info@investeamberlin.com - P +49 30 40577087

Bezugsfrei! Stilvoll möblierte Altbauwohnung in absoluter Toplage!

10585 Berlin - Charlottenburg
verkauft
Reference
78,65 m² Superficie
3 Stanze
1 Bagni

Descrizione

Lichtdurchflutet und stilvoll eingerichtet!

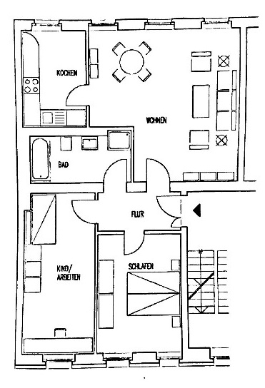
Die helle Wohnung befindet sich im 4.OG des Vorderhauses. 3 Zimmer, eine voll ausgestattete Einkaukücke sowie ein großzügig geschnittenes Badezimmer mit Dusche und Wanne sind Hauptmerkmale dieser einzigartigen Wohneinheit.
Sie wurde mit sehr viel Liebe zum Detail eingerichtet. Alle Möbelstücke ( mit Ausnahme der Bilder ) sind im Kaufpreis inbegriffen.
Große Fensterfronten sorgen für optimale Lichtverhältnisse. Das Wohnzimmer sowie die Einbauküche sind zur Wilmersdorfer Straße ausgerichtet. Die Wohnung ist trotz der zentralen Lage bemerkenswert ruhig.
Die beiden Schlafräume sind nach Westen zum Innenhof gerichtet.

Posizione

Eine charmante Kiezlage in historischer Umgebung!

Zwischen Schloss Charlottenburg und Deutsche Oper liegt die Altbauwohnung in begehrter Lage im ruhigen Teil der Wilmersdorfer Straße. Eine Innenstadlage, die auf nichts verzichten muss. Öffentliche Verkehrsmittel, Freizeitangebote, eine Vielzahl von Bars und Restaurants und Geschäfte des täglichen Bedarfs. Die Auswahl kennt hier, nahe der Shoppingmeile „Wilmersdorfer Straße“ keine Grenzen.
Die historische Lage nahe Schloss Charlottenburg ist einzigartig in ganz Berlin. Viele Stuckaltbauten prägen die Umgebung. Der Schlosspark Charlottenburg lädt zu ausgiebigen Spaziergängen ein und auch der Schustehruspark befindet sich der umittelbaren Umgebung.

Numero oggetto interno 7082

Superfici

Superficie:
78,65 m²

Costi

Prezzo di acquisto:
519.000 €
Oggetto a commissione:
Yes
Commissione dell'acquirente:
3.57 %

Caratteristiche

Cucina:
Built-in kitchen

Dettagli dell'immobile

Tipo di utilizzo:
Living
Tipo di immobile:
Apartment (floor)
Stanze:
3
Bagni:
1
Piano:
4 / 5
Anno di costruzione:
1900
Condizione:
In good condition
Disponibile dal:
sofort
Tipo di riscaldamento:
Central heating
Riscaldamento:
Gas

Certificazione energetica

Classe energetica:
Energy demand certificate (performance)
Valido fino a:
10.0.2030
Fabbisogno energetico finale:
97 kWh/(m²*a)
Fonte di energia:
Gas
Anno di costruzione:
1900
Data di emissione:
2020-07-10
Tipo di edificio:
Residential building
Energy efficiency scale:
C
A+
A
B
C
D
E
F
G
H